[2026] Guide For Secondary Suite Permit Applications in Toronto & the GTA?
January 26, 2026
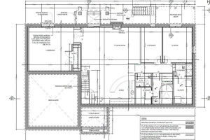
A Complete Homeowner’s Guide to Zoning, Permits, Building Code & Legalization Secondary suites, often called basement apartments, in-law suites, or second units, have become one of the most common residential renovations across...
